Italiano
560.000 €

PORZIONE NUOVA CLASSE A4

Porzione Villa in vendita • Modena (Villanova) - Strada delle Quattro Ville
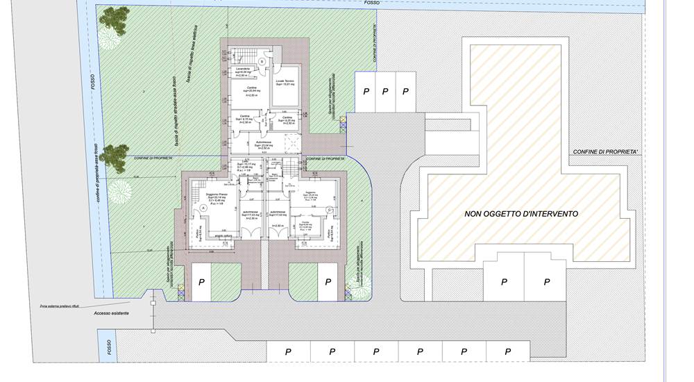
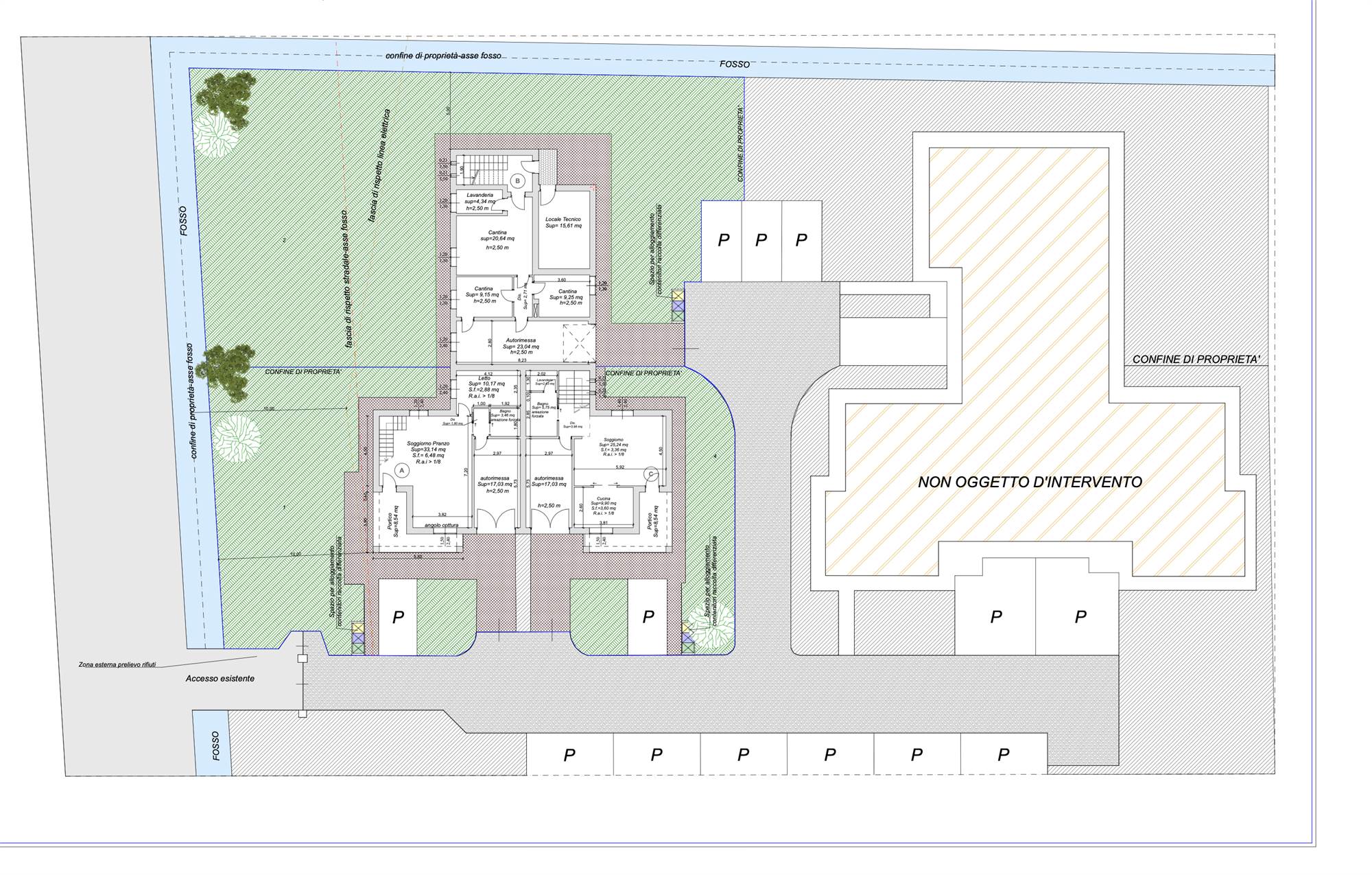
MO1079 - VILLANOVA DI MODENA In contesto esclusivo e di nuova costruzione proponiamo porzione di casa con 510 mq di giardino privato, in classe energetica A4, completa di impianto fotovoltaico da 5 Kw con accumulo.

La casa è così disposta:
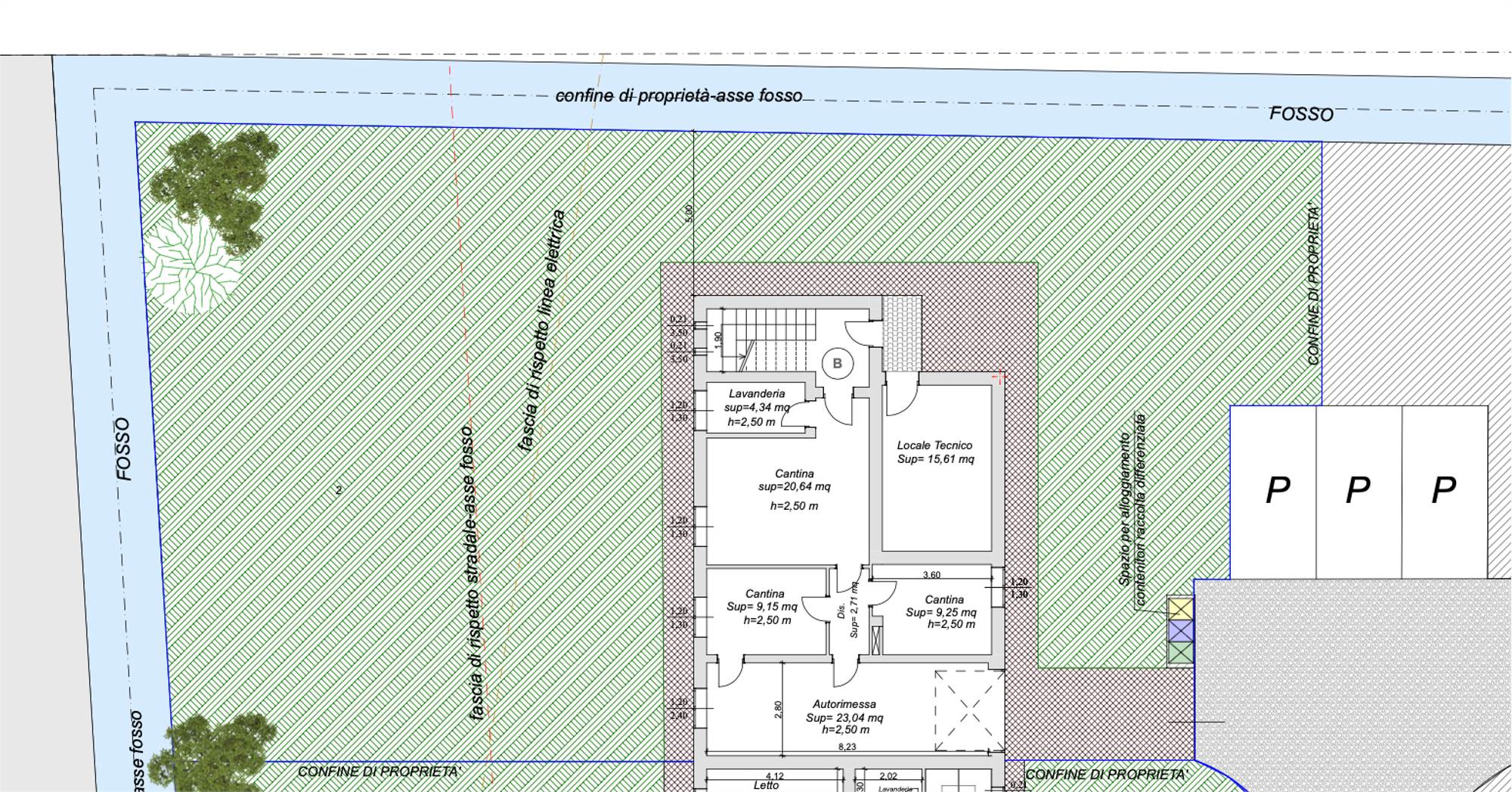
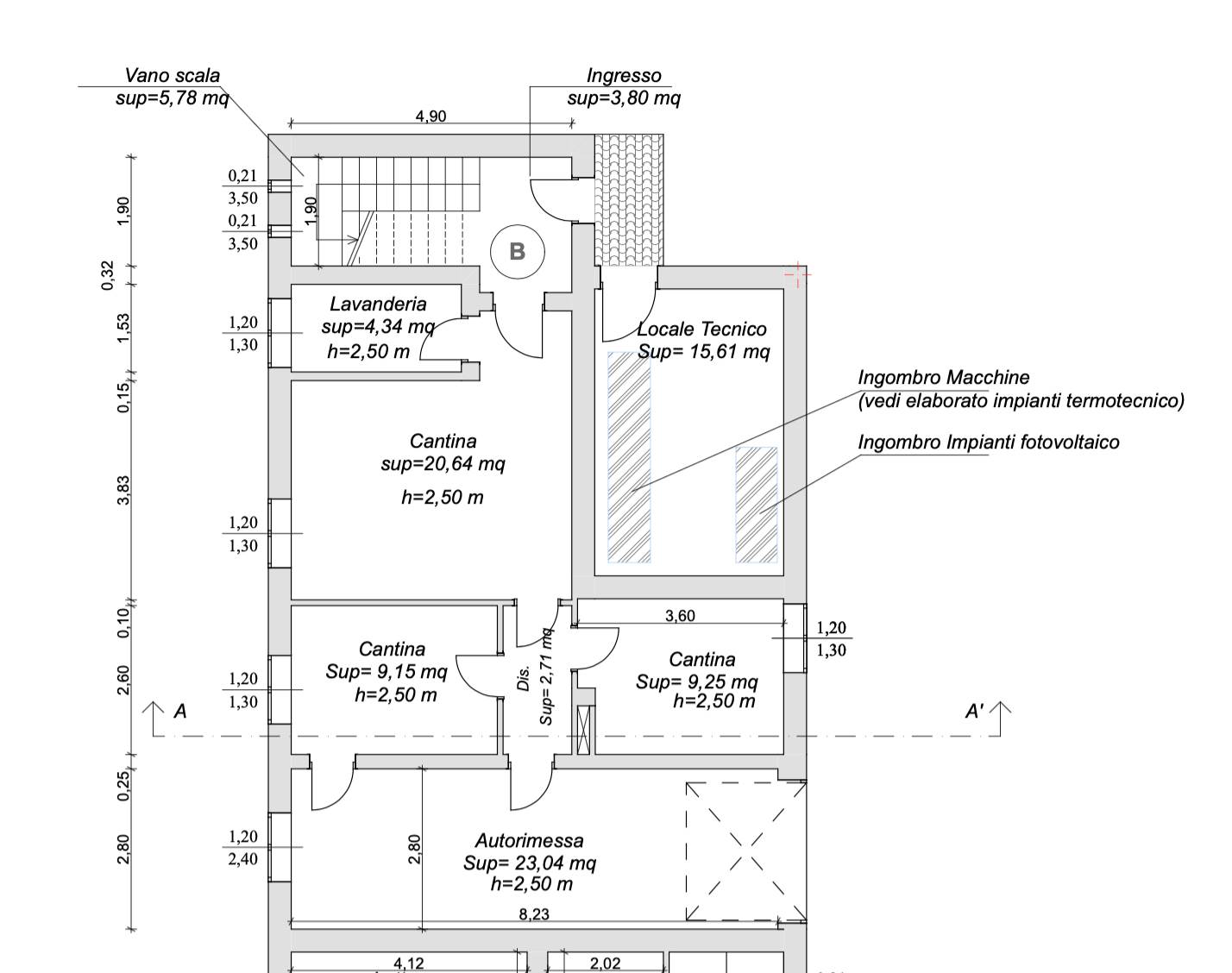
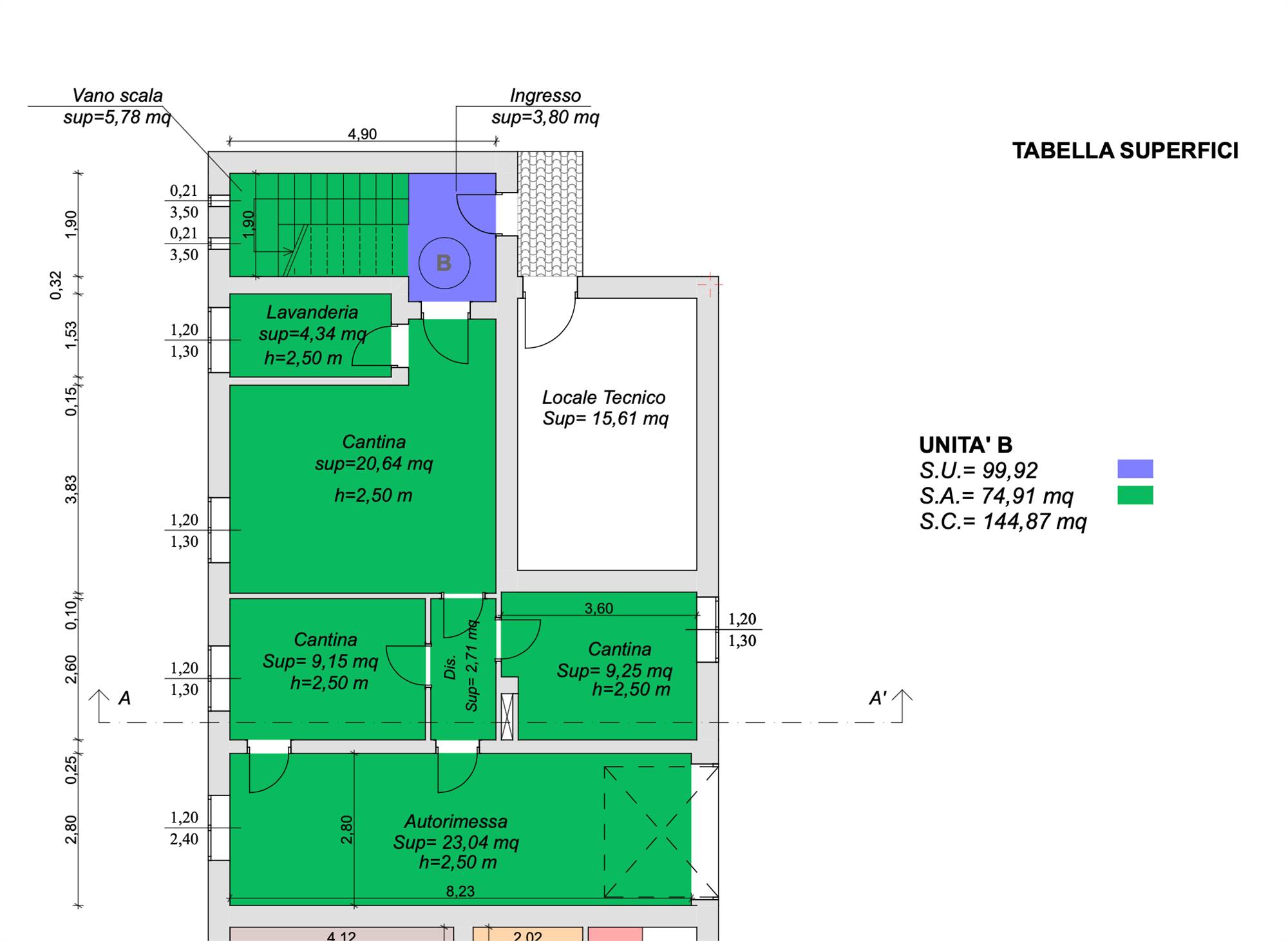
PT tre cantine con altezza 2.50 m, bagno, vano tecnico ed autorimessa.
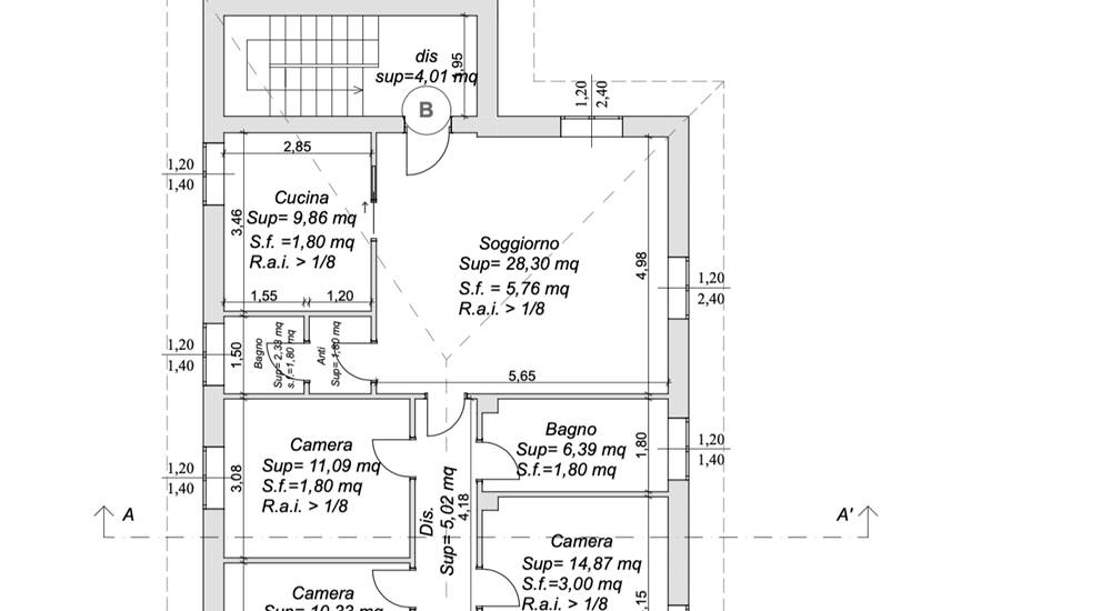
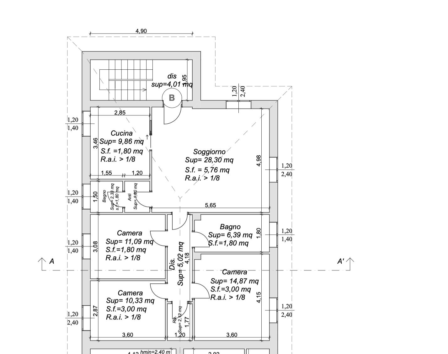
P1 Salone, cucina abitabile (possibilità di creare open space ed angolo cottura), tre camere da letto, due bagni.

Ottime finiture ed impiantistica. Area cortiliva privata di 510 mq, in parte pavimentata con trattamento antiscivolo.
Incluso nel prezzo impianto fotovoltaico da 5 Kw con accumulo.

Disposizioni interne ancora modificabili, ci contatti per andare a realizzare la soluzione su misura per lei e la sua famiglia e per ricevere una copia del capitolato.

In costruzione
Consegna 6 mesi dal compromesso.
Prezzo € 560.000 finita

PER INFO CONTATTARE IL NUMERO: 059.80.91.31

L'indirizzo indicato nell'annuncio potrebbe non corrispondere.
CONTATTATECI SENZA ALCUN IMPEGNO!! oppure Vi invitiamo a lasciare il vostro numero di telefono per essere ricontattati. Grazie.
Presso il nostro ufficio abbiamo altre proposte immobiliari nelle zone di Bomporto, San Prospero, Ravarino, Nonantola, Crevalcore, Cavezzo, Medolla, Mirandola, Modena.
L' agenzia immobiliare Velvet ha diversi uffici per poter offrire la giusta competenza e conoscenza del luogo :
SAN PROSPERO - RAVARINO - MIRANDOLA - MODENA .
Se disponete di un immobile il nostro Studio vi offre una perizia gratuita del valore di mercato e l' aiuto e la competenza nella gestione della Vendita dello stesso e dell' eventuale riacquisto.
Caratteristiche principali
Codice
MO1079
Città
Modena (Villanova)
Categoria
Porzione Villa
Prezzo
560.000 €
Locali
7
Camere
5
Bagni
3
Mq
239
Box
1
Mq Box
29
Posti auto
1
Mq Giardino
510
Piano
Terra
Classe energetica
A4
Stato Immobile
Nuovo
Grado
Signorile
Posizione
Campagna
Panorama
Vista Aperta
Orientamento
Est Sud Ovest
Lati Liberi
3
Giardino
Privato
Arredi
Non Arredato
Tipo Soggiorno
Salone
Tipo Cucina
Abitabile
Riscaldamento
Autonomo
Tipo Riscaldam.
Pompa di Calore
Tipo Impianto
Pavimento
Fonte Energetica
Fotovoltaico
Acqua Calda
Autonoma
Raffrescamento
Split
Infissi
PVC Triplo Vetro
Serramenti
Nuovo
Persiana
Oscurante Metallo
Pavim. Giorno
Gres Porcellanato
Pavim. Notte
Gres Porcellanato
Pavim. Cucina
Gres Porcellanato
Pavim. Bagno
Gres Porcellanato
Isolamento
Presente
Isolamento termico
Cappotto esterno

Accessori: Aria Condizionata, Armadio a Muro, Bagno Handicap, Cancello Elettrico, Fibra Ottica, Filo Diffusione, Geotermia, Impianto Domotica, Impianto Fotovoltaico, Impianto Satellitare, Lavanderia, Passaggio Automobilistico, Passaggio Pedonale, Porta Blindata, Rete Dati, Ripostiglio, Tapparelle Elettriche, Tripli Vetri, Video Citofono, Video Sorveglianza, Zanzariere

Mappa
Strada delle Quattro Ville , Modena (MO)
Richiedi informazioni
Invia
Condividi su
Cookie preference