Italiano
695.000 €

CAPANNONE NUOVO - POLO INDUSTRIALE SAN FELICE

Capannone in vendita • San Felice sul Panaro - Via Lavacchi
MO1087 - Vendesi Capannone industriale nuovo al Polo Industriale di San Felice.

Il capannone è stato oggetto di ricostruzione post sisma ultimata nel 2019, ad oggi si presenta in stato di nuovo.
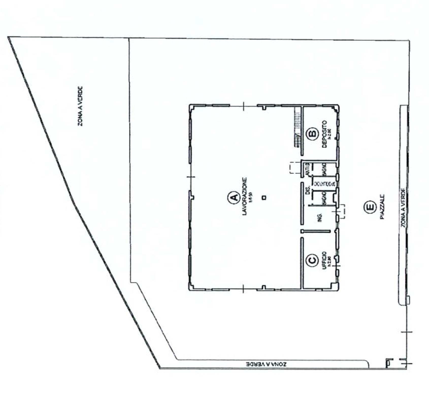
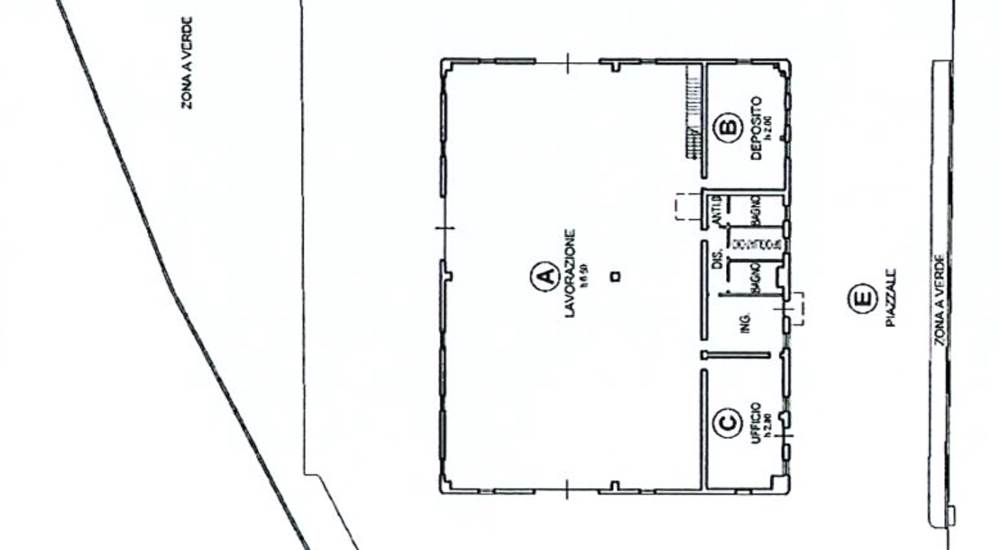
Il fabbricato insiste su un lotto con accesso indipendente di 4.000 mq, ed è libero su quattro lati. Il piazzale di circa 3.200 mq è utilizzabile per parcheggi e per deposito esterno. Sono presenti tre portoni e due porte, per cui è facilmente divisibile. Consta in due parti, zona lavorazioni e zona uffici/servizi.

Zona Lavorazioni (668 mq): Altezza di 6,5 m, presente riscaldamento con pompa di calore, pannelli fotovoltaici, ulteriore possibilità di riscaldamento con radiatori industriali. Possibilità di installare carroponte.
Impianto elettrico completo, prese perimetrali.
Presente ampio soppalco utilizzabile come sempre come produzione/lavorazione ma anche come uffici. Dal soppalco si puo accedere tramite una scala fissa al tetto per effettuare manutenzioni.

Zona Uffici/Servizi (194 mq): Presenti tre locali fruibili come uffici, inoltre troviamo il ripostiglio e locale tecnico, doppi e ampi servizi. Completamente cablata e con riscaldamento.

Libero
Richiesta € 695.000

PER INFO CONTATTARE IL NUMERO: 059.80.91.31

L'indirizzo indicato nell'annuncio potrebbe non corrispondere.
CONTATTATECI SENZA ALCUN IMPEGNO!! oppure Vi invitiamo a lasciare il vostro numero di telefono per essere ricontattati. Grazie.
Presso il nostro ufficio abbiamo altre proposte immobiliari nelle zone di Bomporto, San Prospero, Ravarino, Nonantola, Crevalcore, Cavezzo, Medolla, Mirandola, Modena.
L' agenzia immobiliare Velvet ha diversi uffici per poter offrire la giusta competenza e conoscenza del luogo :
SAN PROSPERO - RAVARINO - MIRANDOLA - MODENA .
Se disponete di un immobile il nostro Studio vi offre una perizia gratuita del valore di mercato e l' aiuto e la competenza nella gestione della Vendita dello stesso e dell' eventuale riacquisto.
Caratteristiche principali
Codice
MO1087
Città
San Felice sul Panaro
Categoria
Capannone
Prezzo
695.000 €
Locali
5
Mq
862
Piano
Terra
Classe energetica
In fase di valutazione
Stato Immobile
Nuovo
Lati Liberi
4
Riscaldamento
Autonomo
Tipo Riscaldam.
Pompa di Calore
Tipo Impianto
Aria
Fonte Energetica
Fotovoltaico
Acqua Calda
Boiler elettrico annuale
Raffrescamento
Split
Infissi
Alluminio Doppio Vetro
Serramenti
Nuovo
Persiana
Tapparella Metallo
Pavim. Bagno
Ceramica
Destinazione
Industriale
Accesso Disabili
Nessuna Barriera
Accesso interno disabili
Parziale
Isolamento
Presente
Isolamento termico
Isolamento tetto/sottotetto
Isolamento acustico
Serramenti
Mq piazzale/corte
4000

Accessori: Aria Condizionata, Bagno Handicap, Cancello Elettrico, Doppi Vetri, Impianto Fotovoltaico, Locale Fumatori, Parco Condominiale, Passaggio Automobilistico, Passaggio Pedonale, Porta Blindata, Ripostiglio

Mappa
Via Lavacchi , San Felice sul Panaro (MO)
Richiedi informazioni
Invia
Condividi su
Cookie preference