Italiano
85.000 €

PIANO TERRA CON GIARDINO RISTRUTTURATO

Appartamento in vendita • Finale Emilia - Via Petocchi, 16
MO1107 - FINALE EMILIA - In centro, in palazzina oggetto di restaurato post sisma proponiamo appartamento trilocale al piano terra. Da investimento.

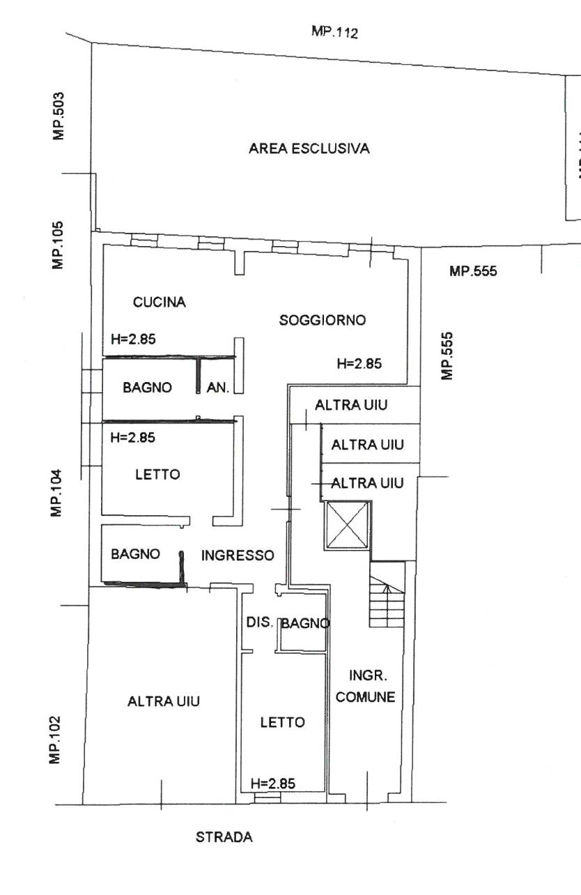
PT Ingresso, salone con accesso al giardino privato, cucina abitabile, due camere matrimoniali, tre bagni ed accesso diretto al garage di 38 mq.

• Classe Energetica A2
• Impianto di riscalamento autonomo
• Riscaldamento a pavimento
• Raffrescamento con "split"

Attualmente locato.
Renita 8%
Prezzo € 85.000

Palazzina di 4 appartamenti, disponibili in vendita anche gli altri 3. Fissa un appuntamento in ufficio per scoprire tutte le proposte ed i dettagli.
NB. L'appartamento viene venduto con vincolo locatizio.

PER INFO CONTATTARE IL NUMERO: 059.80.91.31

L'indirizzo indicato nell'annuncio potrebbe non corrispondere.
CONTATTATECI SENZA ALCUN IMPEGNO!! oppure Vi invitiamo a lasciare il vostro numero di telefono per essere ricontattati. Grazie.
Presso il nostro ufficio abbiamo altre proposte immobiliari nelle zone di Bomporto, San Prospero, Ravarino, Nonantola, Crevalcore, Cavezzo, Medolla, Mirandola.
L' agenzia immobiliare Velvet ha diversi uffici per poter offrire la giusta competenza e conoscenza del luogo :
SAN PROSPERO - RAVARINO - MIRANDOLA - MODENA .
Se disponete di un immobile il nostro Studio vi offre una perizia gratuita del valore di mercato e l' aiuto e la competenza nella gestione della Vendita dello stesso e dell' eventuale riacquisto.
Caratteristiche principali
Codice
MO1107
Città
Finale Emilia
Categoria
Appartamento
Prezzo
85.000 €
Locali
6
Camere
2
Bagni
3
Mq
145
Mq Box
38
Mq Giardino
30
Piano
Terra
Classe energetica
A2
Stato Immobile
Ristrutturato
Arredi
Non Arredato
Tipo Soggiorno
Soggiorno
Tipo Cucina
Angolo Cottura
Riscaldamento
Autonomo
Tipo Riscaldam.
Caldaia a Condensazione
Tipo Impianto
Pavimento
Fonte Energetica
Metano
Acqua Calda
Autonoma
Raffrescamento
Split
Infissi
PVC Doppio Vetro
Serramenti
Buono
Persiana
Oscurante PVC
Pavim. Giorno
Gres Porcellanato
Pavim. Notte
Gres Porcellanato
Pavim. Cucina
Gres Porcellanato
Pavim. Bagno
Gres Porcellanato
Isolamento termico
Cappotto esterno
Isolamento acustico
Serramenti

Accessori: Cancello Elettrico, Doppi Vetri, Lavanderia, Parco Condominiale, Passaggio Automobilistico, Passaggio Pedonale, Porta Blindata, Rete Dati, Ripostiglio, Video Citofono

Mappa
Via Petocchi 16, Finale Emilia (MO)
Richiedi informazioni
Invia
Condividi su
Cookie preference