VENDESI VILLETTA RISTRUTTURATA
Villetta schiera in vendita • Sant'Agata Bolognese - VIA DEGLI ALBERI
RA 510 - SANT'AGATA BOLOGNESE - A pochi passi dal centro, l'Agenzia Immobiliare Velvet vi propone splendida villetta completamente ristrutturata nel 2017.
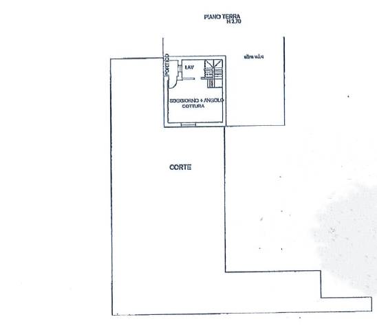
Questa bellissima villetta si sviluppa su tre piani con ingresso indipendente, così composta:
- P.T: ingresso in soggiorno con angolo cottura e accesso diretto al giardino, bagno/lavanderia.
- P.P: disimpegno notte,, camera matrimoniale, camera 3/4 e bagno.
- P.S: soffitta e ripostiglio.
Completano la proprietà garage e ampio giardino di circa 250 mq.
RICHIESTA: € 329.000,00
PER INFO CONTATTARE IL NUMERO: 059.80.91.31
L'indirizzo indicato nell'annuncio potrebbe non corrispondere.
CONTATTATECI SENZA ALCUN IMPEGNO!! oppure Vi invitiamo a lasciare il vostro numero di telefono per essere ricontattati. Grazie.
Presso il nostro ufficio abbiamo altre proposte immobiliari nelle zone di Bomporto, San Prospero, Ravarino, Nonantola, Crevalcore, Cavezzo, Medolla, Mirandola, Modena.
L' agenzia immobiliare Velvet ha diversi uffici per poter offrire la giusta competenza e conoscenza del luogo :
SAN PROSPERO - RAVARINO - MODENA.
Se disponete di un immobile il nostro Studio vi offre una perizia gratuita del valore di mercato e l' aiuto e la competenza nella gestione della Vendita dello stesso e dell' eventuale riacquisto.
Caratteristiche principali
Città
Sant'Agata Bolognese
Categoria
Villetta schiera
Stato Immobile
Ristrutturato
Tipo Cucina
Angolo Cottura
Infissi
Legno Doppio Vetro
Pavim. Giorno
Gres Porcellanato
Pavim. Notte
Gres Porcellanato
Pavim. Cucina
Gres Porcellanato
Pavim. Bagno
Gres Porcellanato
Isolamento termico
Cappotto esterno
Isolamento acustico
Nessuno
Spessore cappotto (cm)
15
Accessori: Aria Condizionata, Cancello Elettrico, Doppi Vetri, Lavanderia, Passaggio Automobilistico, Passaggio Pedonale, Porta Blindata, Ripostiglio, Zanzariere
Mappa
VIA DEGLI ALBERI , Sant'Agata Bolognese (BO)