Italiano
285.000 €

VILLETTA

Porzione Villa in vendita • Ravarino - VIA MALAGOLI
RA514 RAVARINO località Stuffione proponiamo villetta in costruzione con ingresso indipendente libera su 3 lati con giardino privato di circa 300mq .
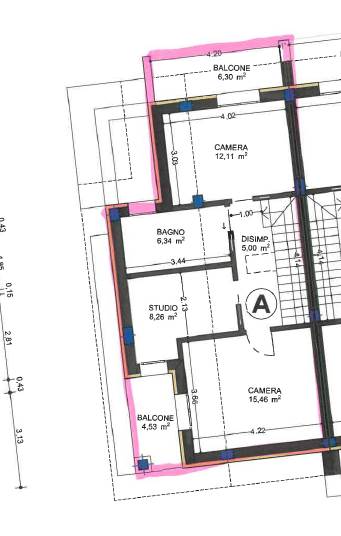
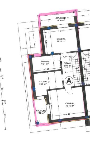
Villetta su 2 livelli piano terra troviamo ingresso , soggiorno pranzo , bagno e garage ,secondo piano abbiamo zona notte 2 camere con balcone ,studio o terza camera e altro bagno .
RICHIESTA € 285000 PER INFO CONTATTARE IL NUMERO: 059.71.20.633 - cell. 331/9244774

L'indirizzo indicato nell'annuncio potrebbe non corrispondere.
CONTATTATECI SENZA ALCUN IMPEGNO!! oppure Vi invitiamo a lasciare il vostro numero di telefono per essere ricontattati. Grazie.
Presso il nostro ufficio abbiamo altre proposte immobiliari nelle zone di Bomporto, San Prospero, Ravarino, Nonantola, Crevalcore, Cavezzo, Medolla, Mirandola, Modena.
L' agenzia immobiliare Velvet ha diversi uffici per poter offrire la giusta competenza e conoscenza del luogo :
SAN PROSPERO - RAVARINO - MODENA.
Se disponete di un immobile il nostro Studio vi offre una perizia gratuita del valore di mercato e l' aiuto e la competenza nella gestione della Vendita dello stesso
Caratteristiche principali
Codice
RA514
Città
Ravarino
Categoria
Porzione Villa
Prezzo
285.000 €
Locali
7
Camere
2
Bagni
2
Mq
163
Box
1
Mq Box
18
Mq Giardino
277
Balconi
2
Classe energetica
A4
Stato Immobile
In Costruzione
Grado
Signorile
Posizione
Campagna
Panorama
Vista Aperta
Lati Liberi
3
Giardino
Privato
Arredi
Non Arredato
Tipo Soggiorno
Sala da Pranzo
Tipo Cucina
Angolo Cottura
Riscaldamento
Autonomo
Tipo Riscaldam.
Pompa di Calore
Tipo Impianto
Pavimento
Acqua Calda
Caldaia
Raffrescamento
Split
Infissi
PVC Triplo Vetro
Serramenti
Nuovo
Persiana
Tapparella PVC
Pavim. Giorno
Gres Porcellanato
Pavim. Notte
Gres Porcellanato
Pavim. Cucina
Gres Porcellanato
Pavim. Bagno
Gres Porcellanato
Isolamento
Presente
Isolamento termico
Cappotto esterno
Spessore cappotto (cm)
16
Destinato a residenti
Si

Accessori: Aria Condizionata, Doppi Vetri, Impianto Fotovoltaico, Porta Blindata, Tripli Vetri, Zanzariere

Mappa
VIA MALAGOLI , Ravarino (MO)
Richiedi informazioni
Invia
Condividi su
Cookie preference