Italiano
248.000 €

VILLETTE A SCHIERA

Villetta schiera in vendita • Ravarino (Stuffione) - VIA MATTEOTTI
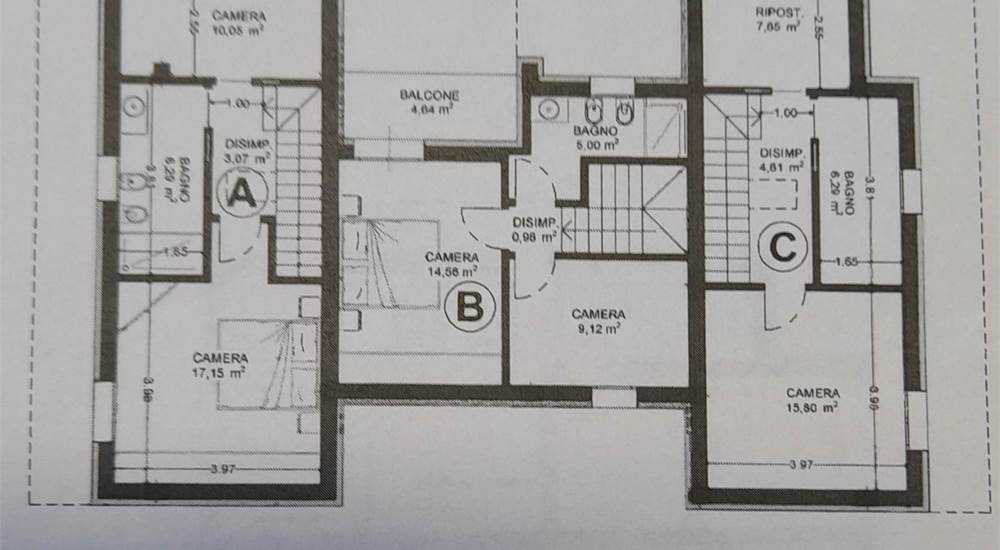
RA521 RAVARINO In località Stuffione , vi proponiamo prossima realizzazione di due villette a schiera con ingresso indipendente e giardino privato libero su tre lati, composte al piano terra da ampio soggiorno con angolo cottura, bagno e accesso diretto al garage da porta interna .Primo piano troviamo disimpegno notte, una camera matrimoniale , una camera singola e altro bagno .

RICHIESTA € 248000 PER INFO CONTATTARE IL NUMERO: 059.71.20.633 - cell. 331/9244774

L'indirizzo indicato nell'annuncio potrebbe non corrispondere.
CONTATTATECI SENZA ALCUN IMPEGNO!! oppure Vi invitiamo a lasciare il vostro numero di telefono per essere ricontattati. Grazie.
Presso il nostro ufficio abbiamo altre proposte immobiliari nelle zone di Bomporto, San Prospero, Ravarino, Nonantola, Crevalcore, Cavezzo, Medolla, Mirandola, Modena.
L' agenzia immobiliare Velvet ha diversi uffici per poter offrire la giusta competenza e conoscenza del luogo :
SAN PROSPERO - RAVARINO - MODENA.
Se disponete di un immobile il nostro Studio vi offre una perizia gratuita del valore di mercato e l' aiuto e la competenza nella gestione della Vendita dello stesso
Caratteristiche principali
Codice
RA521
Città
Ravarino (Stuffione)
Categoria
Villetta schiera
Prezzo
248.000 €
Locali
4
Camere
2
Bagni
2
Mq
133
Box
1
Mq Box
24
Mq Giardino
240
Classe energetica
A4
Stato Immobile
Prossima Realizzazione
Grado
Signorile
Posizione
Campagna
Panorama
Vista Aperta
Lati Liberi
3
Giardino
Privato
Arredi
Non Arredato
Tipo Soggiorno
Sala da Pranzo
Tipo Cucina
Angolo Cottura
Riscaldamento
Autonomo
Tipo Riscaldam.
Pompa di Calore
Acqua Calda
Caldaia
Raffrescamento
Split
Infissi
PVC Triplo Vetro
Serramenti
Nuovo
Persiana
Tapparella PVC
Pavim. Giorno
Gres Porcellanato
Pavim. Notte
Gres Porcellanato
Pavim. Cucina
Gres Porcellanato
Pavim. Bagno
Gres Porcellanato
Isolamento termico
Cappotto esterno

Accessori: Aria Condizionata, Impianto Fotovoltaico, Porta Blindata, Tripli Vetri, Zanzariere

Mappa
VIA MATTEOTTI , Ravarino (MO)
Richiedi informazioni
Invia
Condividi su
Cookie preference