Italiano
155.000 €

VENDESI APPARTAMENTO SU DUE LIVELLI

Appartamento in vendita • San Prospero
IN TRATTATIVA!!!
SP 9784 - SAN PROSPERO - L'Agenzia Immobiliare Velvet, vi propone in vendita appartamento disposto su due livelli in ottima posizione comoda a tutti i servizi, così composto:

- ingresso in sala da pranzo con angolo cottura e accesso diretto al balcone, disimpegno notte, due camere e bagno.

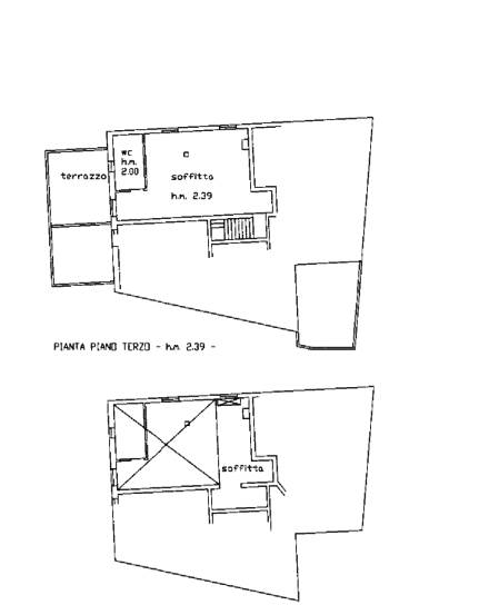
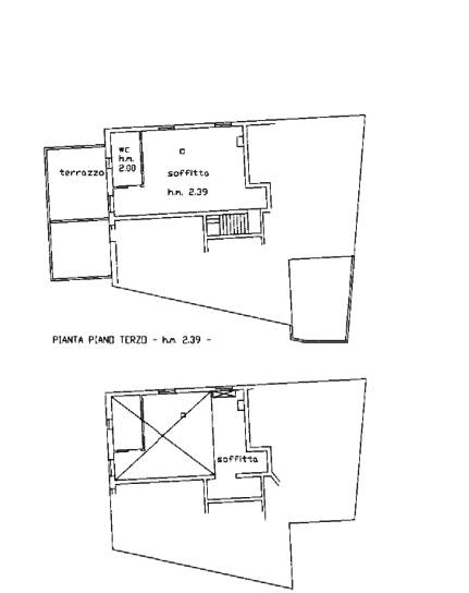
Al piano superiore ampia soffitta dove si possono ricavare due stanze aggiuntive, bagno/lavanderia, soppalco e terrazzo.

Garage al piano terra.

RICHIESTA: € 155.000,00

PER INFO CONTATTARE IL NUMERO: 059.80.91.31

L'indirizzo indicato nell'annuncio potrebbe non corrispondere.
CONTATTATECI SENZA ALCUN IMPEGNO!! oppure Vi invitiamo a lasciare il vostro numero di telefono per essere ricontattati. Grazie.
Presso il nostro ufficio abbiamo altre proposte immobiliari nelle zone di Bomporto, San Prospero, Ravarino, Nonantola, Crevalcore, Cavezzo, Medolla, Mirandola, Modena.
L' agenzia immobiliare Velvet ha diversi uffici per poter offrire la giusta competenza e conoscenza del luogo :
SAN PROSPERO - RAVARINO - MODENA.
Se disponete di un immobile il nostro Studio vi offre una perizia gratuita del valore di mercato e l' aiuto e la competenza nella gestione della Vendita dello stesso e dell' eventuale riacquisto.
Caratteristiche principali
Codice
SP9784
Città
San Prospero
Categoria
Appartamento
Prezzo
155.000 €
Locali
5
Camere
2
Bagni
2
Mq
113
Box
1
Balconi
1
Terrazzi
1
Piano
2
Classe energetica
F
217,05 kWh/m²a
Stato Immobile
Buono
Grado
Medio
Posizione
Centro
Panorama
Vista Aperta
Lati Liberi
2
Giardino
Comune
Tipo Soggiorno
Sala da Pranzo
Tipo Cucina
Angolo Cottura
Riscaldamento
Autonomo
Tipo Riscaldam.
Caldaia
Tipo Impianto
Radiatori
Fonte Energetica
Metano
Acqua Calda
Autonoma
Raffrescamento
Predisposizione
Infissi
Legno Doppio Vetro
Serramenti
Buono
Persiana
Tapparella Metallo
Pavim. Giorno
Ceramica
Pavim. Notte
Ceramica
Pavim. Cucina
Ceramica
Pavim. Bagno
Ceramica

Accessori: Cancello Elettrico, Doppi Vetri, Lavanderia, Passaggio Automobilistico, Passaggio Pedonale, Porta Blindata, Zanzariere

Richiedi informazioni
Invia
Condividi su
Cookie preference