Italiano
175.000 €

VENDESI APPARTAMENTO INDIPENDENTE

Appartamento in vendita • Bomporto (Sorbara) - via del salice
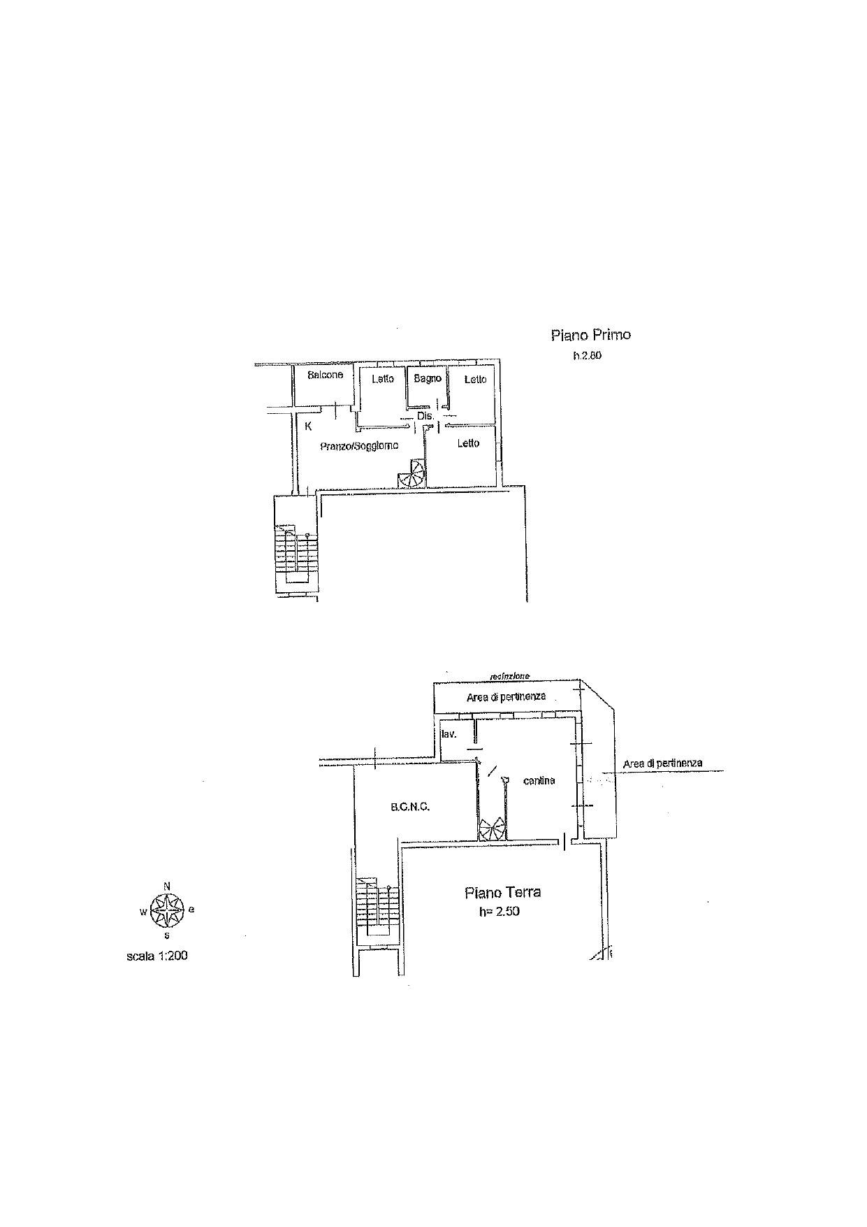
SP 9787 - BOMPORTO/SORBARA - L'Agenzia Immobiliare Velvet di Gelati Graziella, vi propone in vendita splendido appartamento con ingresso indipendente così composto:

- al piano terra cantina, lavanderia, garage e area di pertinenza NO GIARDINO!!!

- al piano primo ingresso in sala da pranzo, angolo cottura con accesso diretto al terrazzino, disimpegno notte, tre camere e bagno.

RICHIESTA: € 175.000,00

PER INFO CONTATTARE IL NUMERO: 059.80.91.31

L'indirizzo indicato nell'annuncio potrebbe non corrispondere.
CONTATTATECI SENZA ALCUN IMPEGNO!! oppure Vi invitiamo a lasciare il vostro numero di telefono per essere ricontattati. Grazie.
Presso il nostro ufficio abbiamo altre proposte immobiliari nelle zone di Bomporto, San Prospero, Ravarino, Nonantola, Crevalcore, Cavezzo, Medolla, Mirandola, Modena.
L' agenzia immobiliare Velvet ha diversi uffici per poter offrire la giusta competenza e conoscenza del luogo :
SAN PROSPERO - RAVARINO - MODENA.
Se disponete di un immobile il nostro Studio vi offre una perizia gratuita del valore di mercato e l' aiuto e la competenza nella gestione della Vendita dello stesso e dell' eventuale riacquisto.
Caratteristiche principali
Codice
SP9787
Città
Bomporto (Sorbara)
Categoria
Appartamento
Prezzo
175.000 €
Locali
6
Camere
3
Bagni
2
Mq
120
Box
1
Mq Box
18
Terrazzi
1
Piano
Terra
Classe energetica
F
222,73 kWh/m²a
Stato Immobile
Buono
Grado
Medio
Posizione
Centro
Panorama
Vista Aperta
Lati Liberi
2
Giardino
No
Arredi
Possibilità
Tipo Soggiorno
Soggiorno
Tipo Cucina
Abitabile
Riscaldamento
Autonomo
Tipo Riscaldam.
Caldaia
Tipo Impianto
Radiatori
Fonte Energetica
Metano
Acqua Calda
Autonoma
Raffrescamento
Split
Infissi
Legno Doppio Vetro
Serramenti
Buono
Persiana
Oscurante Legno
Pavim. Giorno
Ceramica
Pavim. Notte
Ceramica
Pavim. Cucina
Ceramica
Pavim. Bagno
Ceramica

Accessori: Aria Condizionata, Camino, Doppi Vetri, Lavanderia, Porta Blindata, Ripostiglio, Zanzariere

Mappa
via del salice , Bomporto (MO)
Richiedi informazioni
Invia
Condividi su
Cookie preference